Seb en Katja’s op maat gemaakte plantenbank bij de vuurkorf
Een besloten zithoek in de tuin maken
Seb en Katja wilden in hun grote tuin een zithoek creëren. De tuin was vrij open en het idee was om een beetje privacy te creëren door een zithoek te combineren met beplanting rondom van enkele hoge planten en grassen om een natuurlijke omheining te creëren die privacy biedt.
Hoe de tuin eerst was ---->

De tuin plannen
Seb en Katja stonden open voor opties voor hun tuin en deden wat onderzoek in winkels en online om inspiratie op te doen. Na veel zoeken vonden ze WoodBlocX en vonden het idee en de ontwerpmogelijkheden geweldig. Door WoodBlocX te gebruiken, konden ze voor hun tuin iets heel unieks krijgen.
Ze gebruikten onze gratis ontwerpservice en we hebben met hen samengewerkt om een ontwerp te maken op basis van hun ideeën. Aanvankelijk overwogen ze een ronde bank met plantenbak bij de vuurkorf te nemen, maar ze kozen uiteindelijk voor een vierkant ontwerp dat veel beter bij hun tuin en hun toekomstplannen voor de tuin past.
Seb zei: “De samenwerking met het ontwerpteam was een perfect voorbeeld van goede klantenservice. Absoluut een van mijn beste ervaringen als klant tot nu toe. Harry, onze ontwerper, was attent en behulpzaam. Toen we eenmaal een ontwerp hadden waar we tevreden mee waren, hebben we de afmetingen aangepast aan onze ruimte in de tuin en ons plan was klaar.”


Voorbereiding en bouwen
In de meeste gevallen zijn voor WoodBlocX-constructies geen noemenswaardige grondwerkzaamheden nodig, maar Seb en Katja wilden een volledig apart deel in hun tuin creëren en besloten een terras aan te leggen waarop de bank moest worden gebouwd. Het ontwerp van hun terras bestond uit twee rechte zijden die de vorm van de bank weerspiegelen, plus een mooie ronding om de hoeken te verzachten.
Over het bouwen met WoodBlocX zei Seb: “We hebben het ontwerp zelf gebouwd, het kostte ons twee dagen en het proces was heel eenvoudig. Als je eenmaal weet hoe het werkt en de smaak te pakken hebt, is het net zo eenvoudig als bouwen met LEGO-stenen.”




Het uiteindelijke ontwerp
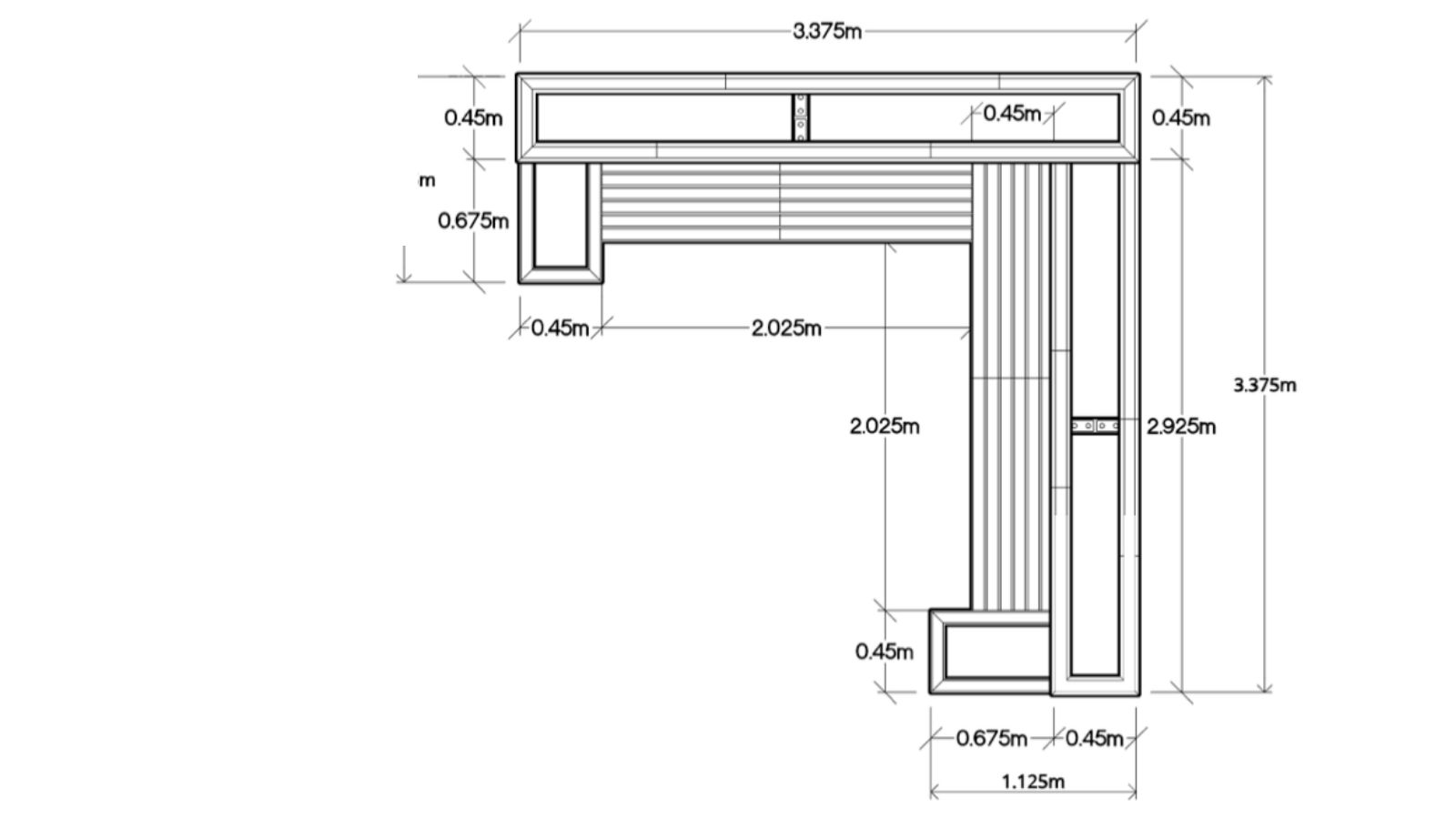
Het uiteindelijke ontwerp bestond uit smalle plantenbakken in twee lagen die de rugleuningen vormen met een extra plantenbak aan elk uiteinde en voldoende ruimte om te zitten en van de tuin of de vuurkorf te genieten. Het ontwerp maakt gebruik van onze traditionele afdekking met overhang aan de twee hogere rugleuningen van de plantenbak en onze gelijke afdekking op de twee plantenbakken die zich aan elk uiteinde van de bank bevinden voor een naadloze afwerking tussen het zitdeel en de plantenbakken.
Er waren nog een paar BlocX en wat afdekking over en dat hebben ze goed kunnen benutten door er een klein vierkant krukje van te maken!




Ideeën voor beplanting
Seb en Katja selecteerden enkele planten voor de bakken die voor wat extra privacy moeten zorgen, waaronder grassoorten zoals vingergras (Panicum virgatum) en struisriet (Calamagrostis x acutiflora 'Karl Foerster’). Om wat kleur toe te voegen hebben ze de volgende soorten geplant: Vuurpijl/Fakkelellie (Kniphofia Redhot Popsicle), Rode zonnehoed (Echinacea Big Kahuna), Wolfsmelk (Euphorbia amygdaloides 'Purpurea) en Blauwedistel (Eryngium planum).

Belangrijkste kenmerken

Gebruik WoodBlocx voor zitgelegenheid in de tuin
Onze zitmogelijkheden zijn ideaal voor tuinen in alle stijlen, vormen en grootten. Het mooie van WoodBlocX is dat het naar jouw wensen kan worden ontworpen. Jij kunt ons vertellen welke elementen je wilt opnemen. Veel van onze klanten gebruiken de ontwerpen op onze website als leidraad en gebruiken vervolgens onze gratis ontwerpservice om ze aan te passen in termen van grootte en kenmerken. Hier zijn enkele van onze populaire ontwerpen.








