Ben's nieuw aangelegde Japanse zentuin
Van een generieke nieuwbouwtuin tot een WoodBlocX zen-paradijs!

Nieuwbouwtuinen die aan kopers worden overgedragen bestaan meestal slechts uit twee kenmerken: graszoden en bestrating. Hoewel de koper met een blanke lei kan beginnen, blijft de tuin vaak in deze staat; en ontbeert deze vele jaren aantrekkelijke accenten en goede plantgrond.
Met verhoogde bakken van WoodBlocX beschik je over een geweldige oplossing om het broodnodige groen en functionele ruimte toe te voegen en zo een tuin te creëren die volledig op maat is gemaakt voor de eigenaar.
Ben's tuin paste volledig in het stereotype beeld van een nieuwbouwtuin, maar hij had een visie voor het perceel van 120 m2: een multifunctionele, onderhoudsarme zentuin met permacultuur aanleggen om voedsel te verbouwen en ecosystemen te creëren, maar tegelijkertijd ook een stijlvolle ruimte maken om te ontspannen en te entertainen.
Het perceel
De locatie had alle benodigde elementen om zijn doel te bereiken: tuin gericht op het zuidwesten, veel direct zonlicht, grenzend aan weilanden, wat helpt om nog meer nuttige wildlife en bestuivers naar de tuin te lokken.

Waarom kiezen voor WoodBlocX?
Ben overwoog aanvankelijk om spoorbielzen van 2,40 m te gebruiken voor zijn project, maar het zou moeilijk zijn om de vormen en verschillende uitsneden te maken voor de specifieke vormen die hij in gedachten had. WoodBlocX bood hem veel meer veelzijdigheid en een optie die geen extra kosten van vakmensen inhield.
Onze gratis ontwerpservice
Ben diende zijn ideeën en ontwerp voor inrichting van de ruimte in. Calum, een van onze designers, maakte de ontwerpschets en berekende wat er nodig was om het ontwerp tot leven te brengen, waarbij hij zijn expertise gebruikte om enkele suggesties te doen hoe het ontwerp verbeterd kon worden.
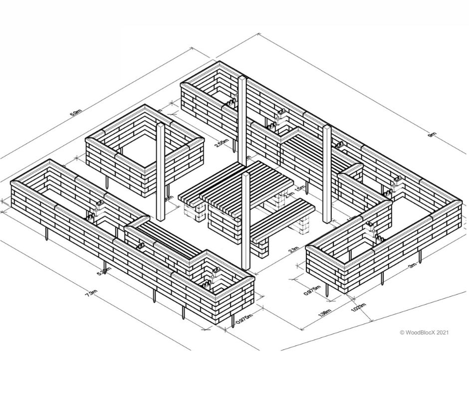
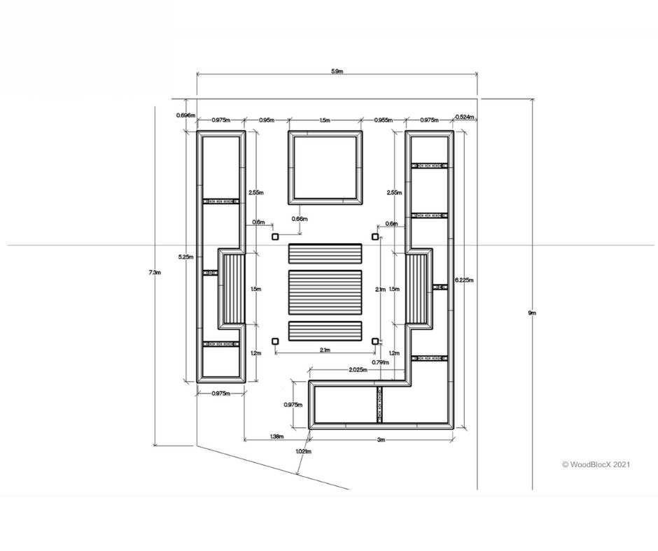
Er was een pergola in het midden van zijn tuin gepland. Calum voegde de afmetingen die Ben had verstrekt aan het ontwerp toe, waarbij hij de afmetingen tussen de verhoogde bakken en de steunbalken van de pergola aangaf om ervoor te zorgen dat er aan beide zijden voldoende toegang was.
Geweldige service
Alle klanten die onze gratis maatwerk ontwerpservice gebruiken, ontvangen een gepersonaliseerd designpakket met gedetailleerde tekeningen van het ontwerp, waardoor klanten een goed inzicht krijgen hoe hun uiteindelijke ontwerp eruit zal zien in hun tuin.


Het resultaat
Het uiteindelijke ontwerp omvat een grote L-vormige verhoogde bak met geïntegreerde zitplaatsen, een verhoogde tuinvijver aan de voorkant van de tuin, een tafel en bank in het midden die netjes onder de pergola staat en een lange rechthoekige verhoogde bak met geïntegreerde zitplaatsen die de L-vorm aan de andere kant van de tuin weerspiegelt.
Voor de looppaden tussen de verhoogde bakken heeft Ben decoratieve leisteenschilfers en stenen tegels gebruikt voor de ultieme onderhoudsarme afwerking.
Na het voorbereidende grondwerk bouwden Ben en zijn partner Dom in vier weekenden zelf het volledige WoodBlocX-systeem. Ze werden blijkbaar bijgestaan door hun kat Mr. Pants.
Het WoodBlocX-deel is het aantrekkelijke voorste gedeelte van de achtertuin dat het meest zichtbaar is vanuit het huis. Dit loopt door naar het meer verborgen achterste gedeelte van de tuin, waarin een kas, regenwaterton, compostbakken en een volière met een zwerm kwartels staat. Dit vormt een grotendeels gesloten permacultuursysteem op kleinstedelijke schaal.
Vat je ervaring met WoodBlocX in één zin samen
Ben zei: “WoodBlocX bood een uitstekende ontwerpservice, nauwkeurig bewerkte materialen, in totaal goede prijskwaliteit, efficiënte levering en aftersales service.”












"Bens tuin was een briljant en gevarieerd ontwerp om aan te werken. Ik heb een aantal wijzigingen en suggesties aangebracht in zijn oorspronkelijke ontwerp om ervoor te zorgen dat het de best mogelijke oplossing zou bieden.
Voor alle maatwerk ontwerpen wij onze kennis en expertise in om een alternatief te creëren waar de klant misschien zelf niet aan gedacht heeft. In het geval van Ben was er sprake van een alternatief ontwerp met geïntegreerde zitplaatsen in de twee naast elkaar gelegen verhoogde bedden. Ik heb ook de paden tussen de verhoogde bedden verbreed, zodat er voldoende ruimte is voor een standaard kruiwagen."
Zie de transformatie in deze video
Bekijk onze video's om te zien hoe je kunt bouwen en wat je nog meer kunt bereiken met WoodBlocX.





